Vlastnosti plastových sklopně-posuvných dveří REHAU Smartline+ a REHAU SYNEGO AD
Sklopně-posuvné dveře nemáme skladem, je nutné si je objednat přes náš konfigurátor. V nabídce jsou 3 typy: odsuvné křídlo se posouvá doleva, doprava, nebo je uprostřed a po bocích jsou fixní křídla.
Propojení interiéru s exteriérem
Tento typ dveří označovaných také jako PSK portál je moderní alternativou k balkonovým a francouzským dveřím. Používají se ke vstupu na verandu, balkón, terasu či zahradu. Jednou rukou lehce odsunete posuvné křídlo, a vytvoříte tak souvislé propojení interiéru s exteriérem. Dveře zajedou do boku, v pokoji ušetříte místo.
Posuvné křídlo lze vyklopit
Posuvně-sklopné plastové dveře jsou vybaveny i možností ventilace, posuvné křídlo lze vyklopit stejně jako u běžných oken. Ostatní křídla jsou fixní. Dveře jsou v prahové rovině osazeny plastovým profilem, na kterém je spodní kolejnice posuvného systému. Práh je vysoký 6,5 cm.
PSK portál
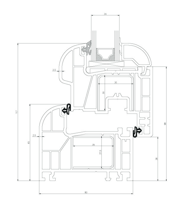
- Hloubka rámu 80 mm.
- K dispozici dva profilové systémy – 5komorový REHAU Smartline+ a 6komorový REHAU SYNEGO AD.
- Ve variantě klasik a round line.
- K dispozici v 28 dekorech + základní bílé barvě.
PSK portál prodáváme ve dvou profilových systémech
Profilový systém REHAU Smartline+
Jedná se o pětikomorový profilový systém německé společnosti REHAU AG + Co. Stavební hloubka je 80 mm. Nabízí výborný poměr ceny a kvality. Dostupné je provedení klasik s rovným křídlem nebo varianta round line s předsazeným zaobleným křídlem.PSK portál REHAU Smartline+ je standardně dodáván s pokoveným izolačním dvojsklem (3 mm) a studeným meziskelním rámečkem. Pro nízkoenergetické domy se mohou posuvné dveře vyrobit s izolačním trojsklem a teplým meziskelním rámečkem. Vše si navolíte v online konfigurátoru. Zasklení je vhodné pro instalaci do nadmořské výšky 600 metrů nad mořem. Pro instalaci ve větších nadmořských výškách prosím kontaktujte naše oddělení zákaznické péče.
Profilový systém REHAU SYNEGO AD
Šestikomorový profilový systém SYNEGO německé společnosti REHAU AG + Co. má stejně jako profilový systém REHAU Smartline+ stavební hloubku 80 mm a je k dispozici s rovným nebo zaobleným křídlem. Díky tomu, že je standardně dodáván s trojsklem, celkový prostup tepla Uw=0,78 W/m²K, je PSK portál REHAU SYNEGO AD vhodný i do pasivních domů.
Kvalitní německé kování – plynulé a snadné ovládání
PSK portál má zevnitř hliníkovou kliku a je osazen kováním řady duoPort SK od německého výrobce Winkhaus. Kování je dostupné ve dvou variantách: s ručním ovládáním bez posilovače, nebo s posilovačem, kterým je tzv. spřažená klika. Díky ní se i těžká a velká křídla snadno posouvají nebo vyklápějí. Ve standardu nabízíme ruční ovládání bez posilovače. Pro objednání varianty ovládání s posilovačem a další technické detaily kontaktujte naši linku telefonické podpory.
Portál je možné doplnit o fixní okna či nadsvětlík
Standardně dodáváme PSK portál do velikosti 2,1 m (v libovolném směru). Pokud ale potřebujete větší rozměr, ozvěte se nám a určitě vymyslíme řešení, které bude vyhovovat vašim představám. Například lze posuvné dveře doplnit o boční fixní okna nebo fixní nadsvětlík.















