Vlastnosti prodávaných plastových oken
K dispozici máme kompletní nabídku profilového systému REHAU
V oknech a dveřích jsou používané profilový systémy od německé společnosti REHAU AG + Co:- základní a cenově nejdostupnější 5komorový profil REHAU Smartline+ – k dispozici ve zboží skladem i na míru přes online konfigurátor
- ekonomický 6komorový profil REHAU Synego AD – dostupný jen v online konfigurátoru.
- nejkvalitnější a nejúspornější 7komorový profil REHAU Synego MD – dostupný jen v online konfigurátoru.
| Druh profilu | Počet komor | Počet těsnění | Standardní zasklení | Tepelný prostup celým oknem Uw | Vzhled |
|---|---|---|---|---|---|
| REHAU Smartline+ | 5 | 2 | dvojsklo (trojsklo volitelné v konfigurátoru) | 1,3 W/m²K (dvojsklo), 0,90 W/m²K (trojsklo) | rovný, zaoblený |
| REHAU Synego AD | 6 | 2 | trojsklo | 0,78 W/m²K | rovný, zaoblený |
| REHAU Synego MD | 7 | 3 | trojsklo | 0,77 W/m²K | rovný, plochý svar V-Perfect |
Profilový systém REHAU SMARTLINE+
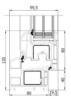
- Plastová okna REHAU Smartline+ ve verzi classic (s rovným křídlem)
- Plastová okna REHAU Smartline+ ve verzi elegance (se zaobleným křídlem)
Chci se dozvědět více o výrobě a dodavatelích oken REHAU Smartline+.
Plastová okna REHAU Smartline+ nabízí vynikající poměr ceny a kvality. Jak je to možné? Plně automatizovaná výroba, použití nejmodernějších technologií a distribuce přímo k zákazníkovi bez zbytečných mezičlánků.
Standardně prodáváme plastová okna REHAU Smartline+ s dvojsklem a ve verzi classic, tedy s rovným křídlem. Pokud preferujete zaoblené předsazené křídlo, objednejte si okna a dveře přes online konfigurátor.
Základní charakteristika oken REHAU Smartline+
- 5komorový profilový systém německé společnosti REHAU AG + Co.
- Pozinkované ocelové výztuhy zajišťují tuhost a stabilitu oken.
- Stavební hloubka 80 mm.
- Zvukový útlum 33 dB.
- Velmi dobré tepelně izolační vlastnosti (uspoříte na výdajích za energie).
- Výrobek je osazen izolačními skly z produkce koncernu skupiny DOVISTA nebo britské společnosti Pilkington.
- Ve standardu pokovené izolační dvojsklo s koeficientem prostupu Ug=1.0/1.1 W/m²K. Při použití dvojskla tepelný prostup celým oknem Uw=1.3 W/m²K. Pokud potřebujete lepší izolační vlastnosti, objednávejte okna REHAU Smartline+ přes konfigurátor, v němž si navolíte trojskla, pak je Uw=0,90 W/m²K.
- Za příplatek lze objednat vylepšený plastový meziskelní rámeček, který minimalizuje výskyt rosení.
- Zasklení je vhodné pro instalaci do nadmořské výšky 600 metrů nad mořem. Pro instalaci ve větších nadmořských výškách prosím kontaktujte naše oddělení zákaznické péče.
Profilový systém REHAU SYNEGO AD
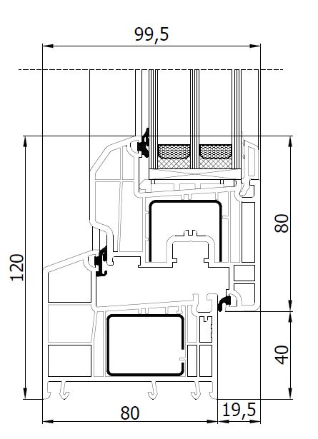
- Plastová okna REHAU SYNEGO AD ve verzi round line (se zaobleným předsazeným křídlem)
- Plastová okna REHAU SYNEGO ve verzi klasik (s rovným křídlem)
Základní charakteristika oken REHAU SYNEGO AD
- 6komorový profilový systém SYNEGO německé společnosti REHAU AG + Co.
- Důmyslná konstrukce vnitřních komor a předkomor zaručuje vysokou pevnost a stabilitu.
- Stavební hloubka 80 mm (vyšší statická pevnost)
- Perfektní tepelně izolační vlastnosti
- Zvukový útlum 34 dB.
- Okna jsou osazena izolačními skly z produkce dánské skupiny DOVISTA nebo britské společnosti Pilkington.
- Ve standardu pokovené izolační trojsklo (3 mm) s koeficientem prostupu Ug=0,5 W/m²K.
- Tepelný prostup celým oknem Uw=0,78 W/m²K (při použití trojskla a plastového rámečku).
- Za příplatek lze objednat vylepšený plastový meziskelní rámeček, který minimalizuje výskyt rosení. NYNÍ AKCE: plastový rámeček bez příplatku.
- Zasklení je vhodné pro instalaci do nadmořské výšky 600 metrů nad mořem. Pro instalaci ve větších nadmořských výškách prosím kontaktujte naše oddělení zákaznické péče.
- Díky svým vynikajícím parametrům byla okna Státním fondem životního prostředí ČR zahrnuta do programu NOVÁ ZELENÁ ÚSPORÁM (kód SVT814)
- Naše společnost získala certifikát Bisnode. Členství v Registru solventních firem je znamením bezpečného a korektního vztahu s našimi budoucími zákazníky. Certifikát Registr solventních firem garantuje našim zákazníkům finanční stabilitu, dobrou platební morálku, solventnost a spolehlivost.
- Víme, co nabízíme a o kvalitě našich produktů jsme přesvědčeni. Rádi proto poskytneme reference od více než 50 000 zákazníků, které jsme v České republice, Slovenské republice, v Rakousku a Německu dosud obsloužili.
Vyberte si z naší široké nabídky skladových oken REHAU Smartline+!
Podrobnější informace k oknům REHAU Smartline+ a REHAU SYNEGO AD
Kování
- Celoobvodové kování německého výrobce Winkhaus (řada activPilot).
- Bezpečnostní body snižují riziko překonání zloději a zvyšují pohodlí uživatele.
- Pojistka proti chybné manipulaci.
- U otvíravo-sklopných křídel mikroventilace nebo vícepolohové větrání (až 5 poloh).
- Osmihranný uzavírací čep – hříbek (snadná regulace přítlaku otočením hříbku).
- Modul přizvedávání křídla (mírně křídlo nadzvedává a zajišťuje jeho hladké zavírání).
- Ložisko s brzdou (nůžkové ložisko je vybaveno třecí brzdou, která zpomaluje pohyb křídla).
- Dva bezpečnostní protiplechy proti vloupání již ve standardu zvyšují bezpečnostní úroveň okna.
- Bezpečnostní body ve spolupráci s hříbkem zvyšují odolnost okna proti vloupání.
- Široký rozsah regulace kompenzuje případné montážní nepřesnosti.
- Certifikát odolnosti na 25 000 cyklů.
- Zesílené panty – nosnost křídla až 120 kg.
- Více informací o kování naleznete na stránkách výrobce www.winkhaus.cz v sekci okenní technika.
Certifikáty
Vzhled
- Okna REHAU Smartline+ a REHAU Synego AD jsou k dispozici v rovném, nebo předsazeném zaobleném provedení.
- Předsazené křídlo vytváří okapnici, která omezuje riziko zatékání při prudkých deštích.
- Okna REHAU Smartline+, která máme skladem, jsou k dispozici ve 3 barevných provedeních (bílá, zlatý dub, antracit – vždy jen z venkovní strany).
- Přes online konfigurátor lze u oken REHAU Smartline+ a REHAU Synego AD navolit až 28 barev – 10 standardních a 18 příplatkových.
- Doba dodání u standardních barev (s výjimkou černá ulti matt) je 21 až 28 dnů, u příplatkových (včetně barvy černá ulti matt) je 4 až 6 týdnů.
Standardní barvy
Příplatkové barvy
Těsnění
- Dvě dorazová těsnění EPDM (ethylen-propalen-dien-polymer).
- Výhodou těsnění EPDM je vysoká odolnost proti stárnutí a povětrnostním vlivům. Okna tak těsní i po letech.
- Elegantní šedá barva těsnění pro bílá okna, černá barva těsnění pro okna v dekoru.
- Životnost produktu je řádově desítky roků, vznikne-li s odstupem času potřeba těsnění vyměnit, jde o velmi levnou záležitost. Díky speciálním drážkám, kterými jsou opatřena naše plastová okna, jednoduše původní těsnění z okna vyjmete a nové těsnění do drážek vsadíte. Levné, rychlé a snadné.
Výztuhy
- Okna REHAU Smartline+ a REHAU SYNEGO AD jsou ve standardu opatřeny celoobvodovými výztužemi, které jsou osazeny v rámu i v křídle.
- Materiál výztuží je vždy pozinkovaná ocel odolná proti korozi.
- Tloušťka výztuhy je 1 až 2 mm (dle typu, provedení a velikosti okna).
Ornamentní zasklení
- V našem konfigurátoru si za příplatek můžete navolit ornamentní zasklení a to tyto typy: kůra, chinchila (činčila), delta, delta pískovaná, matné mléčné, matné pískované, master carre, crepi, silvit.
- Ornamentní skla jsou neprůhledná, jsou tak vhodná například do oken v koupelně.
- Ozdobné sklo se zpravidla vkládá strukturovanou stranou směrem do meziskelního prostoru pro snadnou údržbu skleněné výplně.
Kliky
- V ceně každého plastového okna (ať skladového, nebo vyrobeného na míru) je zahrnuta elegantní hliníková klika. Pro bílá okna je v bílé barvě, v případě, že máte z interiérové strany nějaký dekor, je klika tmavě hnědá
- Za příplatek je možné dodat kliku ve stříbrné a bronzové barvě.
- rovněž si můžete pro zvýšení bezpečnosti přiobjednat kliku s dětskou pojistkou a kliku uzamykatelnou, více informací zjistíte v sekci okenní kliky
Meziskelní mřížky
- Pokud chcete mít okno rozdělené na menší tabulky, můžete si za příplatek v konfigurátoru přiobjednat vložení meziskelních mřížek.
- Jedná se o hliníkové profily opatřené barevným nátěrem či potiskem v dřevodekoru, které se v požadovaném rastru upevní k distančním rámečkům a spolu s nimi vloží do meziskelního prostoru. Jsou umístěny mezi skly, takže mytí oken je úplně stejné jako u běžných oken
- Meziskelní mřížky jsou v několika šířkách (8, 18, 26, 45 mm) a mohou být poskládány v mnoha variantách (horizontálně i vertikálně).
- K dispozici v bílé, stříbrné a zlaté barvě a v imitaci dřeva.
- U oken s trojskly se mřížky vkládají pouze do jednoho meziskelního prostoru.
Profilový systém REHAU SYNEGO MD
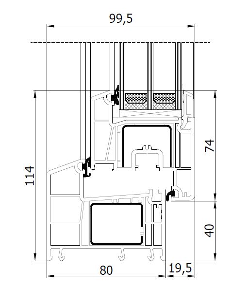
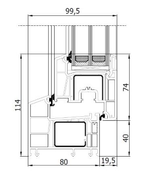
- Plastová okna REHAU SYNEGO MD dodáváme pouze ve verzi klasik (s rovným křídlem)
Sedmikomorový profil REHAU SYNEGO MD vyrobený německou společností REHAU AG + Co má nejlepší izolační vlastnosti ze všech našich profilů. Doporučujeme ho především do nízkoenergetických a pasivních staveb.
Základní charakteristika oken REHAU SYNEGO MD
- 7komorový profilový systém od německé společnosti REHAU AG + Co.
- Moderní rovný vzhled křídla. Standardně je použit plochý svar V-Perfect, který je pevnější (až o 25 %), vizuálně pěknější a vyloučí se degradace materiálu UV zářením ve sváru.
- Stavební hloubka 80 mm.
- Ve standardu je dodáváno izolační trojsklo (Ug=0,5 W/m²K) a teplý meziskelní rámeček.
- Má nejlepší izolační vlastnosti ze všech našich profilů, Uw = 0,77 W/m²K (platí pro referenční okno s rozměry 1230 × 1480 mm).
- Zvukový útlum 34 dB (pro okno do plochy 2,7 m²).
- Trojité těsnění – na rozdíl od jiných oken v naší nabídce má profil REHAU SYNEGO MD ještě středové těsnění, které zvyšuje izolační vlastnosti.
- V nabídce je 10 barev. U oboustranného dekoru je probarvené jádro. Když okno otevřete, neprosvítá bílá, ale jádro je probarvené. Barva jádra je podle barvy okna – antracitová (šedá) pro okna v antracitu a v šedém odstínu, hnědá u zlatého dubu a světle hnědých dekorů, tmavě hnědá u mahagonu a tmavě hnědých dekorů.
- V případě vnitřních barevných dekorů je hnědá (bronzová) klika.
Standardní barvy
Kování
- Celoobvodové kování ROTO NX od německé společnosti Roto Frank Holding AG, popřípadě Winkhaus activePilot.
- Bezpečnostní body snižují riziko překonání zloději a zvyšují pohodlí uživatele.
- Pojistka proti chybné manipulaci.
- U otvíravo-sklopných křídel mikroventilace.
- Osmihranný uzavírací čep – hříbek (snadná regulace přítlaku otočením hříbku).
- Modul přizvedávání křídla (mírně křídlo nadzvedává a zajišťuje jeho hladké zavírání).
- Ložisko s brzdou (nůžkové ložisko je vybaveno třecí brzdou, která zpomaluje pohyb křídla).
- Ve standardní výbavě jsou dva bezpečnostní protiplechy proti vloupání, které zvyšují bezpečnostní úroveň okna.
- Bezpečnostní body ve spolupráci s hříbkem zvyšují odolnost okna proti vloupání.
- Široký rozsah regulace kompenzuje případné montážní nepřesnosti.
- Zesílené panty – nosnost křídla až 150 kg.
- Více informací o kování naleznete na této stránce.
Výroba plastových oken – kompletace, zkoušky, certifikace
Kompletace probíhá na moderních automatických linkách rakouské společnosti GRUBER&CO group.Výrobce disponuje vlastní zkušebnou. Několikrát denně je namátkou vybráno okno, které je testováno, zda splňuje požadované parametry.
Hlavní testy profilového systému: test rozměrových vlastností, test roztažnosti v peci při vysokých teplotách, test v teplotách hluboko pod bodem mrazu, tvarové testy, test průhybu, test povrchu, test pevnosti svárů, test působení síly soustředěné na určitý bod.
Hlavní testy finálního výrobku: vodotěsnost, průvzdušnost, odolnost proti zatížení větrem a další.

.png)

.jpg)













































































