Vlastnosti vedlejších plastových vchodových dveří REHAU Smartline+ a REHAU SYNEGO AD
Tento typ dveří můžete použít ke vstupu na zahradu, na terasu, do garáže nebo jako zadní vstup do domu. Mají nízký hliníkový práh, aby byly vhodné také pro bezbariérový vstup. Plní funkci i běžných vchodových dveří u rodinných domů, nejsou ale vhodné do veřejných budov či bytových domů, kde je vyšší frekvence pohybu. Dodáváme je v provedení dovnitř otvíravé (v tom se liší od hlavních vchodových dveří, které sedají otvírat ven i dovnitř). Opačnou montáž, aby se dveře otevíraly ven, nedoporučujeme.Skladem s doručením do několika dnů máme v nejžádanějších rozměrech vedlejší plastové vchodové dveře REHAU Smartline+, které jsou standardně dodávány s dvojsklem. V případě, že byste dveře potřebovali s jinými parametry (rozměr, zasklení, barva, atd.) využijte náš konfigurátor, dveře vám vyrobíme na míru, dodací doba bývá 4 až 6 týdnů. V konfigurátoru si můžete navolit dva profilové systémy – REHAU Smartline+ a REHAU SYNEGO AD, vždy v provedení klasik s rovným křídlem
Vedlejší vchodové dveře prodáváme ve dvou profilových systémech
Profilový systém REHAU Smartline+
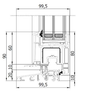
Jedná se o pětikomorový profilový systém německé společnosti REHAU AG + Co. Nabízí výborný poměr ceny a kvality. Standardně jsou vedlejší vstupní dveře REHAU Smartline+ dodávány s dvojsklem (3 mm).
Pro zvýšení tepelně izolačních vlastností v případě stavby nízkoenergetických domů je možné opatřit dveře izolačním trojsklem a teplým rámečkem. Vše si navolíte v online konfigurátoru.
Celkový prostup tepla Ud je u vedlejších vchodových dveří REHAU Smartline+ následující:
- V případě dvojskla a ocelového distančního rámečku je Ud=1,3 W/m²K.
- V případě trojskla a plastového distančního rámečku TGI je Ud=0,90 W/m²K.
Zasklení je vhodné pro instalaci do nadmořské výšky 600 metrů nad mořem. Pro instalaci ve větších nadmořských výškách prosím kontaktujte naše oddělení zákaznické péče.
Vedlejší vchodové dveře REHAU Smartline+ jsou levnější než hlavní vchodové dveře. Oproti hlavním vchodovým dveřím REHAU Smartline+ při jejich výrobě není použito široké křídlo, dají se otevírat pouze dovnitř, mají 2 balkonové panty (hlavní dveře mají 3 panty Joker).
Vedlejší vchodové dveře REHAU Smartline+
- Pětikomorový profilový systém o stavební hloubce 80 mm německé společnosti REHAU AG + Co.
- Celoobvodové kování řada Winkhaus.
- Pouze dovnitř otvíravé.
- Nemají široké křídlo.
- K dispozici v 28 dekorech + základní bílé barvě.
Profilový systém REHAU SYNEGO AD
Šestikomorový profilový systém SYNEGO německé společnosti REHAU AG + Co se stavební hloubkou 80 mm je standardně dodáván s trojsklem. Celkový prostup tepla je Ud=0,89 W/m²K. Vedlejší vchodové dveře REHAU jsou levnější než hlavní vchodové dveře REHAU, na rozdíl od nich mají 2 balkonové panty (hlavní dveře mají 3 panty Joker) a je použito kování Winkhaus řada easyLock (hlavní dveře mají kování Winkhaus řady autoLock).Vedlejší vchodové dveře REHAU SYNEGO AD
- Profil německé společnosti REHAU AG + Co.
- Celoobvodové kování řada easyLock.
- Nízký hlinikový práh.
- Pouze dovnitř otvíravé.
- Mají široké křídlo.
- K dispozici v 28 dekorech + základní bílé barvě.
Vedlejší vchodové dveře máme vystavené na skladě v Kuřimi
Pokud byste si chtěli vedlejší vchodové dveře REHAU Smartline+ a REHAU SYNEGO AD prohlédnout ještě před objednáním, máme je vystavené v sídle naší firmy v Kuřimi. Ve skladu uvidíte:- Vedlejší vchodové dveře REHAU Smartline+ v oboustranném dekoru Winchester, které jsou z větší části plné, zdobí je dlouhý úzký pruh vyplněný ornamentním zasklením typ kůra.
- Vedlejší vchodové dveře REHAU SYNEGO AD v šedé barvě se strukturou dřeva, které mají pět plných polí a jeden prosklený pruh s čirým sklem.
Kování se zvýšenou bezpečností
Vedlejší plastové dveře mají celoobvodové kování od německého výrobce Winkhaus (řada easyLock). Jedná se o vícebodový zámek se 2 excentrickými válečky a 2 hřibovými čepy, které zajišťují správný tlak křídla proti rámu po celé jeho výšce a také těsnost dveří. Zámek je aktivován pomocí kliky.Certifikáty

Součástí dveří je oboustranná klika
Součástí vedlejších dveří je stavební zámek se 3 kusy klíčů a oboustranná hliníková klika s aretací. Změna kliky na kouli není možná (jde to pouze u hlavních vchodových dveří).
K bílým dveřím dodáváme bílé krytky a kliky, pro dveře v dekoru jsou krytky a kliky tmavě hnědé, v případě antracitového dekoru jsou stříbrné.






.png)














